事業成果物名 |
2024年度高齢者のための「もうひとつの家」の整備事業報告書
|
||||||||||||||||||||||||||||
団体名 |
|||||||||||||||||||||||||||||
事業成果物概要 |
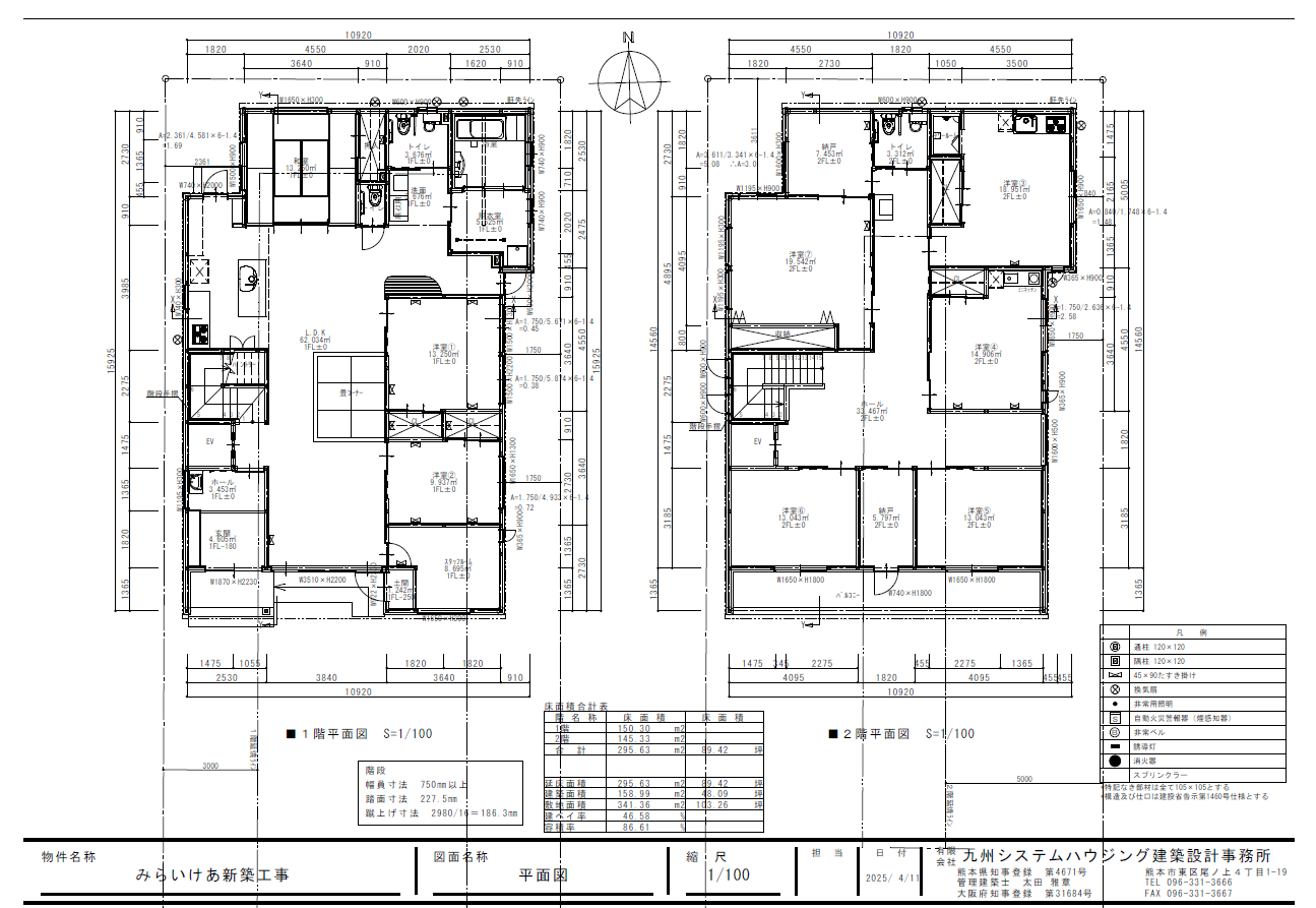
1、ホームホスピス拠点整備事業
(1)時期:2025年3月~2025年10月 (2)場所:熊本市東区花立3丁目6番2 (3)対象:高齢者 (4)内容:a、工事内容:建築主体工事、電気設備、給排水工事、空調設備工事、消防設備工事、他 b、施設名称:ホームホスピス「miraie」(定員:9名) c、面積:敷地面積341.36㎡、延床面積295.63㎡ d、構造:木造2階建て e、施設概要:居室・リビング・台所・洗面所・浴室・トイレ |
||||||||||||||||||||||||||||
助成機関 |
|||||||||||||||||||||||||||||
事業成果物種類 |
機器・建物(写真)
|
||||||||||||||||||||||||||||
事業成果物 |
|






